9
$499,900 Sale
Listed 138 days ago
309 WEST GORE Street Unit# SL A
· 2
· 1.5
· 1
· 881
Key Facts
Key facts for 309 WEST GORE Street Unit# SL A
Property Type
Townhome, Row / Townhouse
Parking
Garage: No, 1 parking
MLS #
10347300
Size
881 sqft
Basement
-
Listed on
-
Lot size
-
Tax
-
Days on Market
-
Year Built
2026
Maintenance Fee
$ 0/mo
Description
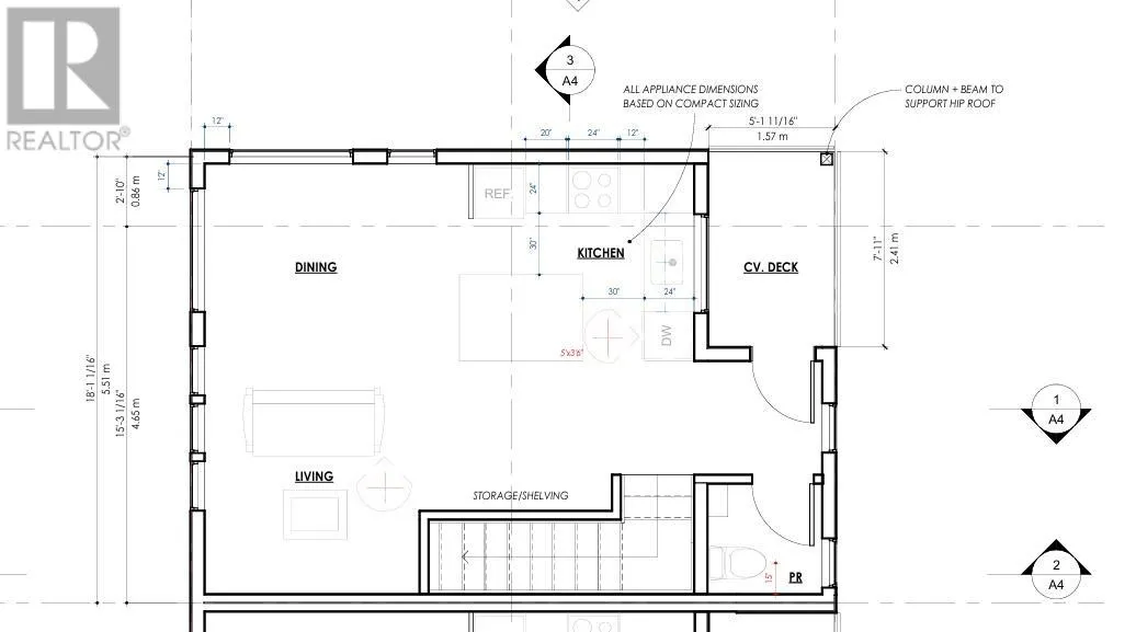
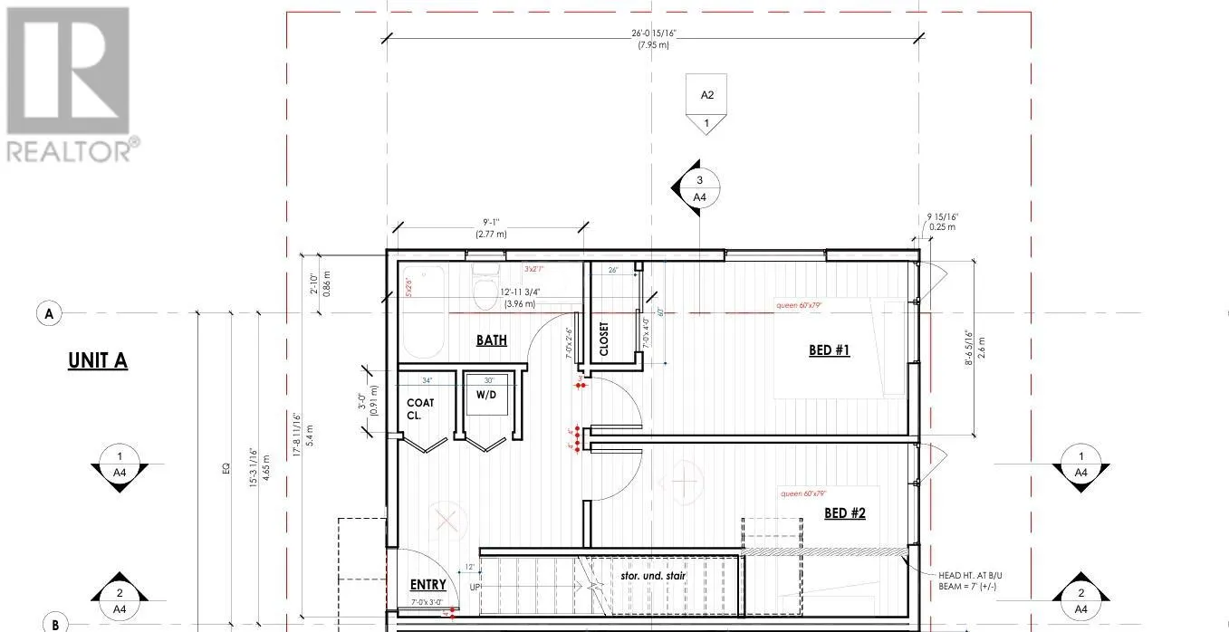
Location Location Location. 309 West Gore is designed to make the most of affordable everyday Kootenay living. Located in Rosemont, the property is an easy walk to the Downtown core, elementary schools, Junior Highschool, churches, convenience stores and Granite Pointe Golf Course. This modern desi...gn home utilizes its switched floorplan to offer a bright and open top floor living plan with 10' ceiling, contemporary flat panel and soft close cabinetry, quartz countertops, tile backsplash, energy efficient LED lighting, spc flooring, 2 pce bathroom and access to a private deck and to take advantage of the views over neighbouring homes. The Main level offers 2 comfortable bedrooms with laundry and the full size bathroom. What an investment for first time buyers, retirees, single parents or anyone looking for an affordable option to purchase a new home with a 2-5-10 warranty. This is a presale offering with construction expected to start fall 2025. (id:10452)
Similar Properties (No results)
Room Types
2pc Bathroom
-
Measurements not available
0 sqft
4pc Bathroom
-
Measurements not available
0 sqft
Bedroom
-
Dimensions 8'6'' x 10'5''
88.54 sqft
Listing courtesy of: Coldwell Banker Rosling Real Estate (Nelson)
This REALTOR.ca listing content is owned and licensed by REALTOR® members of The Canadian Real Estate Association.